S.K.I. House
Wānaka
Private Residence
Wānaka, Aotearoa
New Zealand
Status ︎ Complete
Wānaka, Aotearoa
New Zealand
Status ︎ Complete
Winner︎2024 NZIA National Achitecture Award
Winner︎2024 NZIA Southern Architecture Award
Published︎The Local Project Issue 15︎︎︎
Shortlisted ︎2024 Habitus Home of the Year
Builder: Level Construction
Structural Engineer: Constructure
Landscape: Jared Lockhart Design
Photographer: Sam Hartnett, Casey Moore
Winner︎2024 NZIA Southern Architecture Award
Published︎The Local Project Issue 15︎︎︎
Shortlisted ︎2024 Habitus Home of the Year
Builder: Level Construction
Structural Engineer: Constructure
Landscape: Jared Lockhart Design
Photographer: Sam Hartnett, Casey Moore

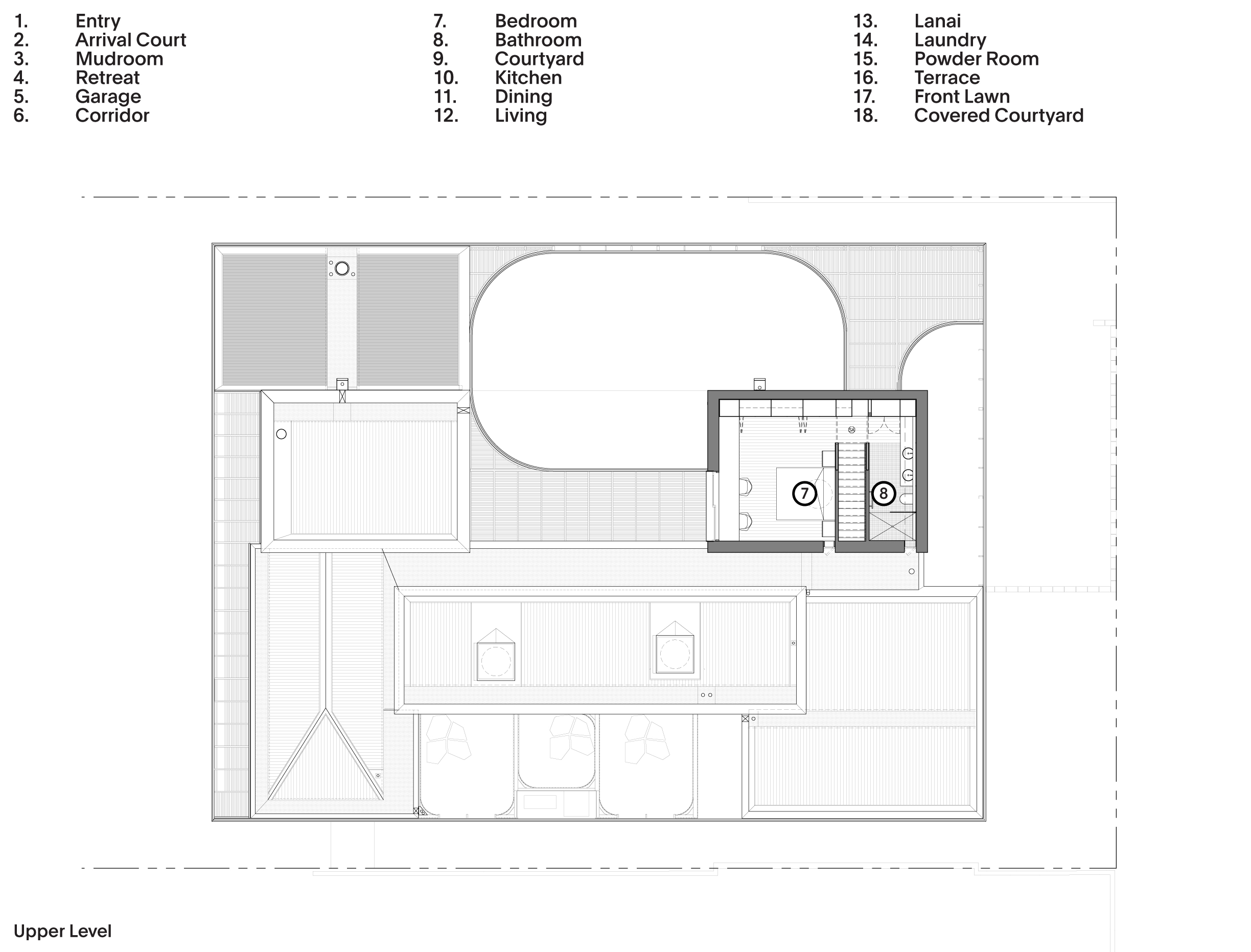
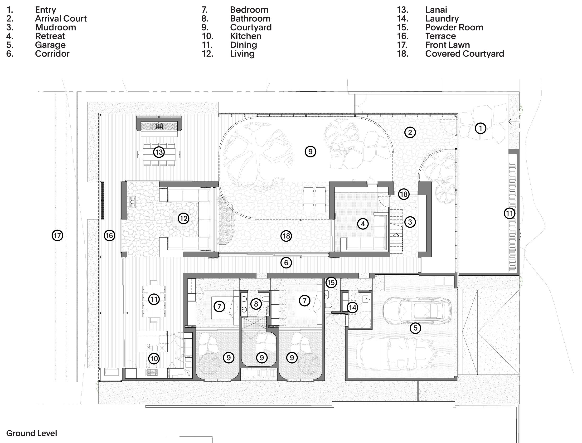
Composed around a series of solid volumes and lightweight screens, this house negotiates its suburban setting to establish an inter-generational sanctuary with carefully curated views to the mountainous landscape beyond.

Positioned
conveniently within walking distance of Wānaka’s urban center, this site has
been occupied by the client for over two decades.
As Wānaka has transformed from a quaint town into a busy urban area and established tourist destination, the client sought an intergenerational project that could be an adaptable retreat amidst the ongoing evolution and densification of Wānaka.
As Wānaka has transformed from a quaint town into a busy urban area and established tourist destination, the client sought an intergenerational project that could be an adaptable retreat amidst the ongoing evolution and densification of Wānaka.

In
response to the changing landscape, the street-facing facade is deliberately
abstract, while selectively revealing hints of what lies beyond. Upon entering,
the house reveals itself as both formal and free-flowing.
This appeal to
different modes of inhabitation is seasonal. In winter, a low-lit, dark-clad
mudroom transitions to a light-filled interior with framed views of the
mountains beyond. In summer, a casual meander over stone steps links a sequence
of gardens to a spacious central courtyard at the heart of the home.
A
reduced palette of natural materials creates continuity between inside and out.
The module of these materials informs everything - from the characterful
detailing to the proportion and openings of each room. This exacting
relationship from part to whole is evidence of a strong collaborative
relationship across the project team. The landscape response is much looser,
offsetting the exacting geometries of the architecture with fractured edges to
the stone paving and planting that varies in height and density throughout the
seasons.
The
project presents itself as a series of solid geometric forms, thoughtfully
arranged to establish a balance between openness and enclosure. These forms are
tied together by a lightweight screen system, courtyards and carefully placed
openings - creating dynamic interplays of light and shadow within. The outcome
is an urban sanctuary amidst Wānaka's dynamic landscape, inviting the next
generation to enjoy it into the future.
NZIA National Awards Jury Citation:
The private house has become a contentious category in architecture as we grapple with issues of sustainability, density and housing security. In response, Roberts Gray has approached this building type with propositions that extend architectural thinking. There is evident speculation about how stubborn vernaculars might be challenged and a suggestion of fresh approaches to materiality, massing, privacy and transparency and balance of built form to landscape. This meticulously detailed and experientially beautiful house reveals impressive technical ability and a finely wrought aesthetic judgement. Importantly, it also demonstrates architectural thinking in this young practice that could lead to a better urbanism.
NZIA Southern Awards Jury Citation:
A stark blank façade gives no hint of the riches within – a restrained material palette of half-height concrete blocks, Japanese cedar and oak floors with raw galvanised steel. The cedar cladding has undergone yaki-sugi treatment, while the same cedar has been left raw inside. Complete with a Japanese-style courtyard garden, the talented design team has created a stunner with their first project, thanks to fantastically friendly client – their parents. While this house may be spending the kids’ inheritance, the integrity of design decisions and assured quality of the finished product suggests money well spent. This house is a masterpiece – the architects are likely to be the vanguard of the future
